RIF AS1390 - Loc. Barontoli

Nel comune di Sovicille vendesi in bellissima villa Quattrocentesca divisa in otto unità abitative, di varie metrature, realizzate con materiali di alto livello e con rifiniture di pregio. Gli appartamenti, fatta eccezione per i due attici, hanno tutti ingresso indipendente, giardino privato, posti auto ed uso della piscina condominiale in caso di interessamento.
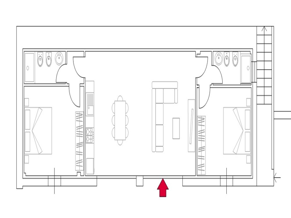
Vendesi ex limonaia trasformata in abitazione completamente indipendente, libera su quattro lati composta di: ampio soggiorno/pranzo con cucina a vista, due camere matrimoniali, bagno e ripostiglio. Il tutto corredato di posti auto, resede esclusivo di mq. 1.230 circa con possibilità di ampliamento. In attesa di certificazione energetica. Completamente e finemente ristrutturato.

Rich. € 420.000

Piantine

Size Camere Bagni
Mq. 96 2 1

Scheda Tecnica

  • Codice AS1390
  • Tipo di Annuncio Vendita
  • Tipologia Appartamenti
  • Provincia SIENA
  • Comune Sovicille
  • Località Loc. Barontoli
  • Numero Locali 4
  • Classe Energetica In fase di richiesta IPE/EPI: kWh/mqanno
  • Piano Terra di
  • Anno ristrutturazione 2025
  • Stato conservazione interni Ristrutturato
  • Stato conservazione esterni Ottimo stato
  • Posto auto privato SI
  • Posto auto condominiale SI
  • Piscina SI
  • Riscaldamento autonomo SI

Sommario

  • 2 Camere
  • 1 Bagni
  • 0 Mq
  • 96 Mq